Installations
Process
Moyens d'essais
Equipements
Services
Accueil
|
Notre offre
|
Nos compétences
|
Nos références
|
Contact
Process & Servitudes
Eau de process
Eau glacée
Air comburant
Air comprimé
Gaz étalons
Ventilation / Extraction gaz
Gestion carburant
Électricité / Automatisme
Détection / Extinction
Ventilation
Notre offre
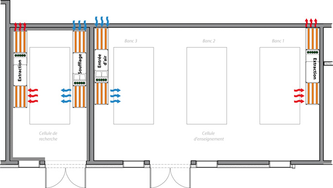
Ventilation des cellules
Ventilation double flux.
Contrôle et régulation des paramètres de température et de pression ambiantes au sein de la cellule d’essais.
Traitement accoustique.
Filtration.
Ventilation de laboratoire
Contrôle des débits.
Contrôle des températures.
Filtration.
Sorbonne.
Extraction gaz
Notre offre
Extraction et dilution des gaz d’échappement.
Conduit double enveloppe inox.
Contrôle de débit.
Traitement accoustique.
Pilotage de la contre-pression.
Quelques unes de nos réalisations
CESAME
Ventilation 50 000 m
3
/ h
ISAT
Ventilation
ISAT
Cheminée double enveloppe
CESAME
Extracteur inox